
燃气桶型过滤器产品简介:
燃气桶型过滤器是燃气输配系统的重要设备。在燃气输配过程中,为了保证燃气输配设备和仪表如调压器等阀门和流量计、压力表仪表的正常工作和保护其不被损坏,燃气中的固体杂质,在其前安装精度符合要求过滤器。
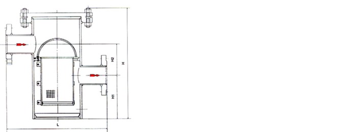
燃气桶型过滤器工作原理:
燃气桶型过滤器是由阀体和滤网组成,阀体为碳钢或不锈钢,过滤网采用不锈钢双层网结构。介质通过滤网阻挡燃气、煤气、沼气、气、石油液化气管路中的锈蚀物和锅炉污垢等杂质,以延长管道系统中各种阀门的工作寿命。当需要清洗时,只要将可拆卸的过滤网从滤桶取出,清洗后重新装入即可。
燃气桶型过滤器产品特点:
1、标准之煤气,沼气,气(LNG),石油液化气(LPG),物腐蚀气体及空气管网上均能使用。
2、桶型过滤器比其他过滤器过滤的面积大于2-3倍,保证了燃气通过时,不受压损。
3、广泛用于燃气调压(柜)站,配气站及门站等输配系统,对保护系统中的调压器,流量计,阀门及其它设备气保护作用。
4、该设备应用可拆法兰上盖,便于取出或更换滤芯。采用不同精度的不锈钢芯可多次清晰使用。


























浙公网安备 33032402001912号